Umbau Wohnhaus Erckenstraße, Aachen
Webseite in Bearbeitung
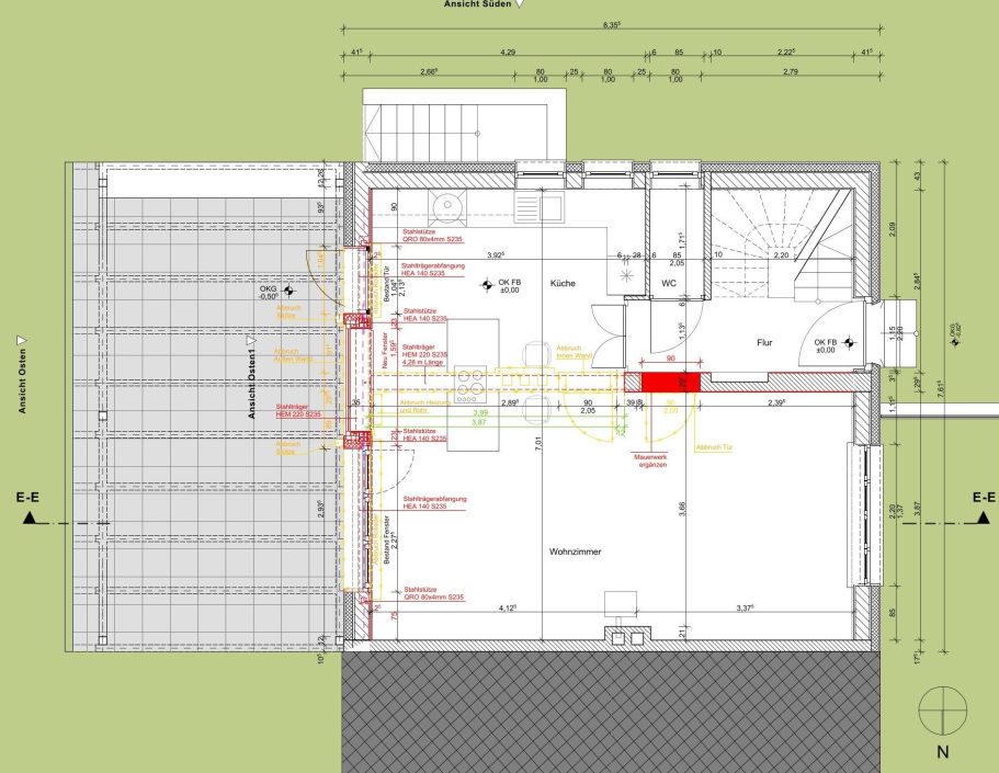
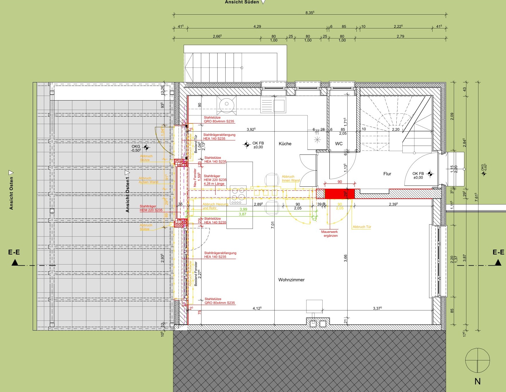
Das Wohnhaus Erckensstraße 18 in Aachen wurde 1955 nach den Plänen des Architekten Hermann Kremers errichtet. Das zweigeschoßige Gebäude mit Satteldach wurde in den vergangenen Jahren mehrfach modernisiert. Heute verfügt es u.a. über ein ausgebautes Dachgeschoß, eine gedämmte Fassade, eine Wärmeschutz-verglasung, eine modernisierte Haustechnik, sowie über eine überdachte Terrasse.
Die nun anstehende Bauaufgabe besteht in der Zusammenlegung des Wohnraums mit der Küche um einen großen gemeinsamen Raumzusammenhang zu erhalten. Zusätzlich soll die terrassenseitige Fassade geöffnet werden und einen optisch fließenden Übergang zwischen Innen und Außen hergestellt werden.




