Neubau Burg O Burggrafenstraße, Aachen
Im Zuge der städtebaulichen Entwicklung des Talbotquartiers entsteht mit „Burg O“ eine neue Wohnanlage mit 46 Plätzen für Studierende. Das Projekt schließt an die bestehenden Bauabschnitte rund um die Gustav-Talbot-Siedlung und die Neubauten „Burg S“ und „Miteinander im Wiesental“ an. Das Grundstück wurde von der Stadt Aachen im Rahmen einer Konzeptvergabe an die gewoge AG übergeben. Die Planung basiert auf dem Bebauungsplan Nr. 849 und erweitert das Quartier entlang der Burggrafenstraße in Richtung Nordosten. Ziel ist es, ein nachhaltiges, sozial orientiertes Wohnangebot in Holzbauweise zu schaffen, das sich harmonisch in die bestehende Umgebung einfügt.
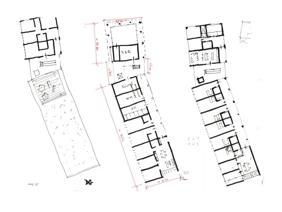
Die Wohnanlage besteht aus einem viergeschossigen Baukörper zur Straße und einem dreigeschossigen Seitenflügel, verbunden durch ein offenes Treppenhaus mit Aufzug. Insgesamt entstehen 25 Einzelappartements à 24 m² sowie fünf Wohngemeinschaften für zwei bis vier Personen mit Größen zwischen 62 und 109 m². Alle Einheiten verfügen über Terrassen oder Balkone. Der Zugang erfolgt über Laubengänge, ein Gemeinschaftsraum im Erdgeschoss mit Terrasse zur Grünfläche fördert das nachbarschaftliche Miteinander. Die Wohnungen sind barrierefrei erreichbar, die Vorgaben der DIN 18040 werden weitgehend erfüllt. Abweichungen gibt es lediglich bei der Größe der Duschbereiche (90 x 90 cm).
Die Bauweise kombiniert vorgefertigte Holzrahmenelemente mit einem aussteifenden Kern aus Stahlbeton. Die tragenden Außenwände bestehen aus Holzmodulen mit hinterlüfteter Rombusschalung, entlang der Laubengänge verputzt. Decken und Balkone werden als Brettschichtholzdecken ausgeführt, mit Estrich, Vinyl- oder Fliesenbelag und entsprechenden Abdichtungen. Das Gebäude erhält ein extensiv begrüntes Flachdach, teilweise mit gemeinschaftlich nutzbarer Dachterrasse. Die Fenster sind dreifach verglast, die Eingangstüren erfüllen T30-RS-Standards mit Nullschwellen.
Die Wärme- und Warmwasserversorgung erfolgt über ein Blockheizkraftwerk aus dem benachbarten Neubau („Burg M“) über ein Nahwärmenetz. Der energetische Standard entspricht KfW-40. Fahrradstellplätze sind am Gebäude und in der Tiefgarage der Talbothäuser vorhanden, die PKW-Stellplätze auf dem eigenen Grundstück bzw. auf der Multifunktionsfläche von „Burg M“. Die Müllentsorgung ist in den Außenanlagen organisiert. Waschmaschinen und Nebenräume für Mobilitätshilfen befinden sich zentral im Erdgeschoss.
Die Außenanlagen wurden durch das Büro 3Plus Freiraumplaner für das gesamte Talbotquartier gestaltet. Das Konzept setzt auf ruhige Aufenthaltsbereiche, naturnahe Begrünung und eine gute fußläufige Anbindung an das benachbarte Wurmtal. Private und öffentliche Grünflächen sind klar voneinander getrennt. Auf einen Spielplatz wurde aufgrund der studentischen Nutzung und vorhandener Alternativen im Umfeld verzichtet.
Mit „Burg O“ entsteht ein durchdachtes, nachhaltiges Wohnangebot für Studierende, das sich durch moderne Holzbauweise, hohe energetische Standards und städtebauliche Einbindung auszeichnet.











