Neubau Burg M Burggrafenstraße, Aachen
Mit dem Bauvorhaben „Burg M“ wird die Entwicklung des Talbotquartiers konsequent fortgesetzt. Als vierter Bauabschnitt ergänzt das Projekt die bisherigen Neubauten südlich der Jülicher Straße um ein kombiniertes Wohn- und Mobilitätsangebot. Das Grundstück liegt zwischen dem Projekt „Burg S“, dem Wohnheim der Lebenshilfe und der Kleingartensiedlung Wiesental. Grundlage ist der Bebauungsplan Nr. 849, der die Fläche als sogenannte „Multifunktionsfläche“ definiert. Ziel ist es, Wohnraum und Stellplatzkonzepte zu vereinen und den motorisierten Verkehr am Rand des Quartiers abzufangen.
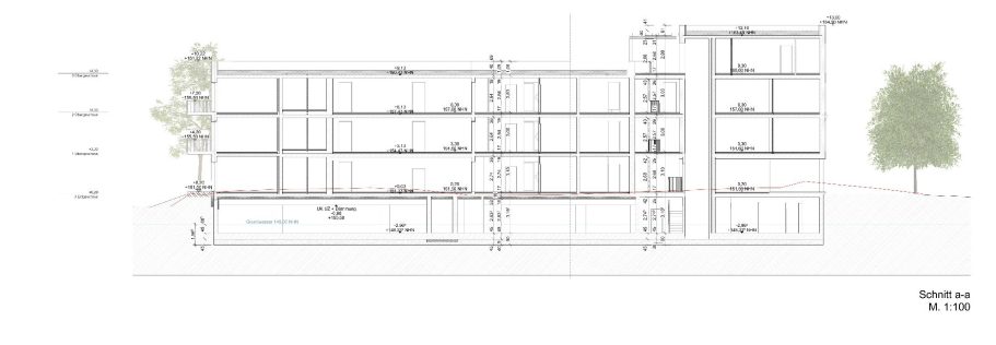
Insgesamt entstehen 20 Wohnungen, davon 16 öffentlich gefördert (zwischen 50 m² und 92 m²) und 4 frei finanziert (97 m² bis 142 m²), letztere als Penthousewohnungen mit Dachterrassen. Alle Wohnungen verfügen über einen eigenen Freisitz – Terrasse, Balkon oder Dachterrasse – und sind vollständig barrierefrei erschlossen. Zwei Gebäudeteile, ein viergeschossiger Kopfbau an der Burggrafenstraße und ein langgestreckter, dreigeschossiger Baukörper entlang des Fußwegs zur Kleingartensiedlung, umfassen die Wohnnutzung. Verbunden werden sie durch ein offenes Treppenhaus mit Aufzug, das auch Zugang zur darunterliegenden Tiefgarage bietet.
Die Besonderheit des Projekts liegt in seiner Kombination mit einer modernen Mobilitätsinfrastruktur. Die Tiefgarage bietet 30 Stellplätze, wovon ein Drittel für E-Autos vorgerüstet ist. Ergänzt wird das Angebot durch zwei Carsharing-Plätze, sechs Bike-Sharing-Stationen (Velo City), Abstellflächen für Lastenräder, eine Mobilitätsstation (Cambio) sowie eine Packstation. Die meisten Mobilitätsangebote und die Tiefgarageneinfahrt befinden sich im Zugangsbereich zur Burggrafenstraße. Die Wärmeversorgung erfolgt über das bestehende Nahwärmenetz aus dem 2. Bauabschnitt, betrieben durch ein Blockheizkraftwerk. Der energetische Standard entspricht KfW 40.
Die Gebäude werden in Massivbauweise mit Stahlbetondecken und Kalksandsteinwänden errichtet und erhalten ein Wärmedämmverbundsystem. Die Tiefgarage und Kellerräume sind als "weiße Wanne" ausgebildet und gegen Grundwasser gesichert. Die Ausstattung umfasst Aufzüge in beide Gebäudeteile, barrierefreie Zugänge, bodengleiche Duschen, Waschmaschinenanschlüsse in den Wohnungen sowie Nebenräume für Technik, Mobilitätshilfen und Abstellflächen im Untergeschoss. Müllentsorgung erfolgt außerhalb der Gebäude entlang der Grundstücksgrenze.
Die Freianlagen werden vom Büro 3Plus geplant, das auch die anderen Bauabschnitte im Quartier betreut. Der Außenbereich ist autofrei und durch Hecken klar in private und halböffentliche Zonen gegliedert. Auch hier steht die Anbindung an das Wurmtal im Fokus. Ein gemeinschaftlicher Spielplatz ist zentral im Hofbereich vorgesehen.
Mit „Burg M“ entsteht ein nachhaltiger Baustein innerhalb des Talbotquartiers, der Wohnen, Mobilität und Quartiersentwicklung in einer innovativen Nutzungseinheit zusammenführt.










