Neubau Freibad Hangeweiher, Aachen
Kurzbeschreibung:
Der Neubau für das Freibad Hangeweiher ersetzt den nicht mehr zeit- und funktionsgemäßen Bestandsbau, der ohnehin zu groß ist und zudem lange nicht mehr vollwertig genutzt wird. Das neue Gebäude ist flächen- und volumenmäßig kleiner, integriert sich ihn die naturale Umgebung und ist auf die Bedürfnisse von Personal und Besucher abgestimmt. Teils verfügt der Neubau über ein Gründach, teils über eine leichte Bedachung ihm Bereich der Kaltumkleiden und der Kasse.
Projektbeschreibung:
Das Freibad Hangeweiher befindet sich innerhalb der Grünfläche des Kaiser Friedrich Parks im Süden des Aachener Stadtgebietes und wurde bereits 1850 als erste Aachener Schwimmanstalt angelegt. Neben den verschiedenen Schwimmbecken und der großen Liegewiese verfügt es über ein um 1960 errichtetes Sozialgebäude mit Umkleideräumen, Sanitäranlagen und Duschen, sowie den Sozialräumen für die Mitarbeiter*innen. Im Gebäude sind auch die Lagerräume und die Wohnung des Schwimmmeisters, sowie eine Sonnenterrasse auf dem Dach untergebracht. Zusätzlich gibt es ein Kassenhaus, sowie einen überdachten Vorbereich mit Kassenautomaten.
Die Arbeitsbereiche einschließlich Kassenhaus erfüllen nicht den heutigen Arbeitsstättenanforderungen. Der Eingangsbereich zeigt starke funktionale Defizite. Die Besucherströme bei guter Wetterlage sind nicht zu bewältigen.
Eine Sanierung des Gebäudes ist u.a. auf Grund der angegriffenen Baukonstruktion nicht sinnvoll.
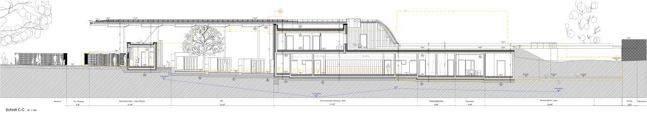
Konzept:
Der geplante Neubau sieht eine Reduzierung der Gebäudekubatur und eine Neuordnung des Kassenbereichs vor. Ein luftiges Dach schützt den Eingangsbereich, die daran anschließenden Einzelumkleidekabinen und die Schließfächer im Freien. Das nur noch ein- bis zweigeschoßige Sozialgebäude beherbergt die Behinderten- und Sammelumkleiden und Toiletten, sowie die Duschräume. Alle Büro- Soziall- und Lagerräume sind im Erdgeschoß untergebracht. Nur die Schwimmmeisterwohnung befindet sich im ersten Obergeschoß. Die Planung berücksichtigt für den Freibad-besucher*innen eine barrierefreie Zugänglichkeit aller Funktionsbereiche und die Anfahrbarkeit für Rettungsfahrzeuge.
Gebäude und Topographie:
Während die Straße Am Hangeweiher von Norden nach Süden ansteigt, fällt das Freibadgelände von Norden nach Süden ab. Dadurch entsteht zwischen der Straße Am Hangeweiher ein vom Freibadeingang bis zum bestehenden Technikgebäude ansteigender Hang. Diese Hangsituation wird genutzt, um den Neubau im Süden auf der Grundfläche des Altbaus einseitig in den Hang zu schieben. Dabei werden die bestehenden Außenwände als Böschungssicherung unterhalb der schützenswerten Bäume genutzt. Das Gelände läuft hier auf dem begrünten Dach des eingeschoßigen Bauteils aus und ermöglicht, dass die Kubatur in diesem Bereich, bis auf den Zugang zur Hausmeisterwohnung, von der Straße kaum wahrnehmbar ist.
Das Dach des zweigeschoßigen Gebäudeteils wird nach Norden verlängert und markiert hier - auf Grund des fallenden Geländeverlaufs der Straße Am Hangeweiher - den Eingang deutlich. Hier findet sich auch das neue Kassenhaus mit einem vorgelagerten zeitgemäßen Automatensystem.
Flächen und Kubatur:
Der geplante Neubau wird mit ca. 2.935 m³ deutlich kleiner als das bestehende Sozialgebäude ca.5.726 m³. Die Summe aller versiegelten Flächen (bebaute Flächen, überdachte Flächen, gepflasterte Flächen) fällt mit ca. 1.901 m² um fast 307 m² geringer aus als im heutigen Bestand (2.208 m²).



















