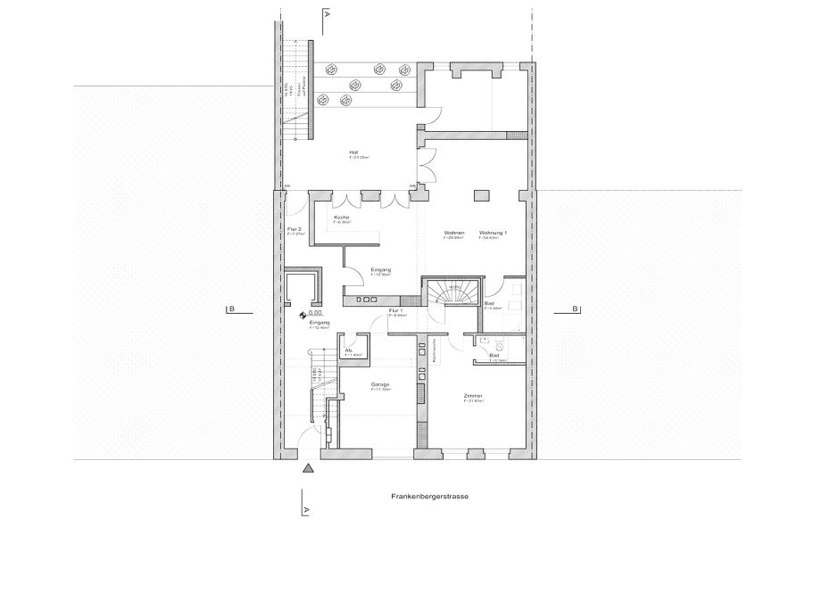
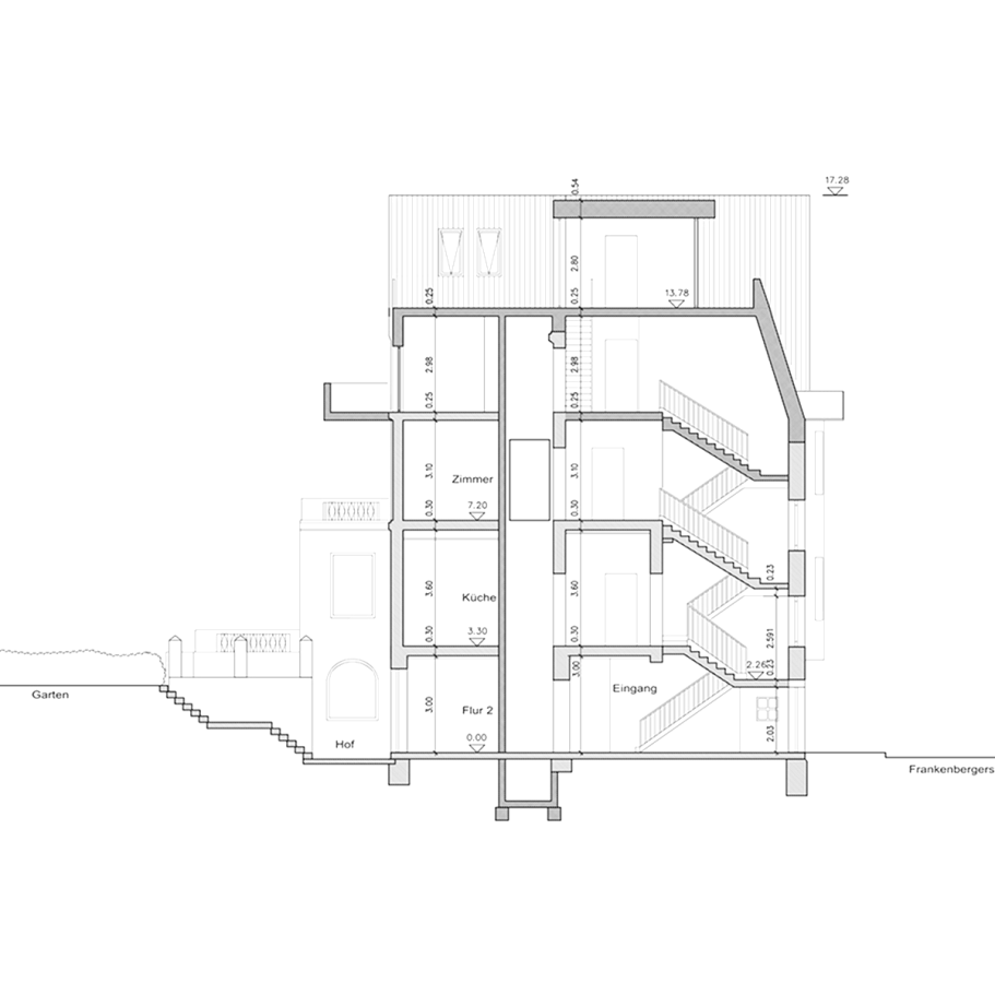
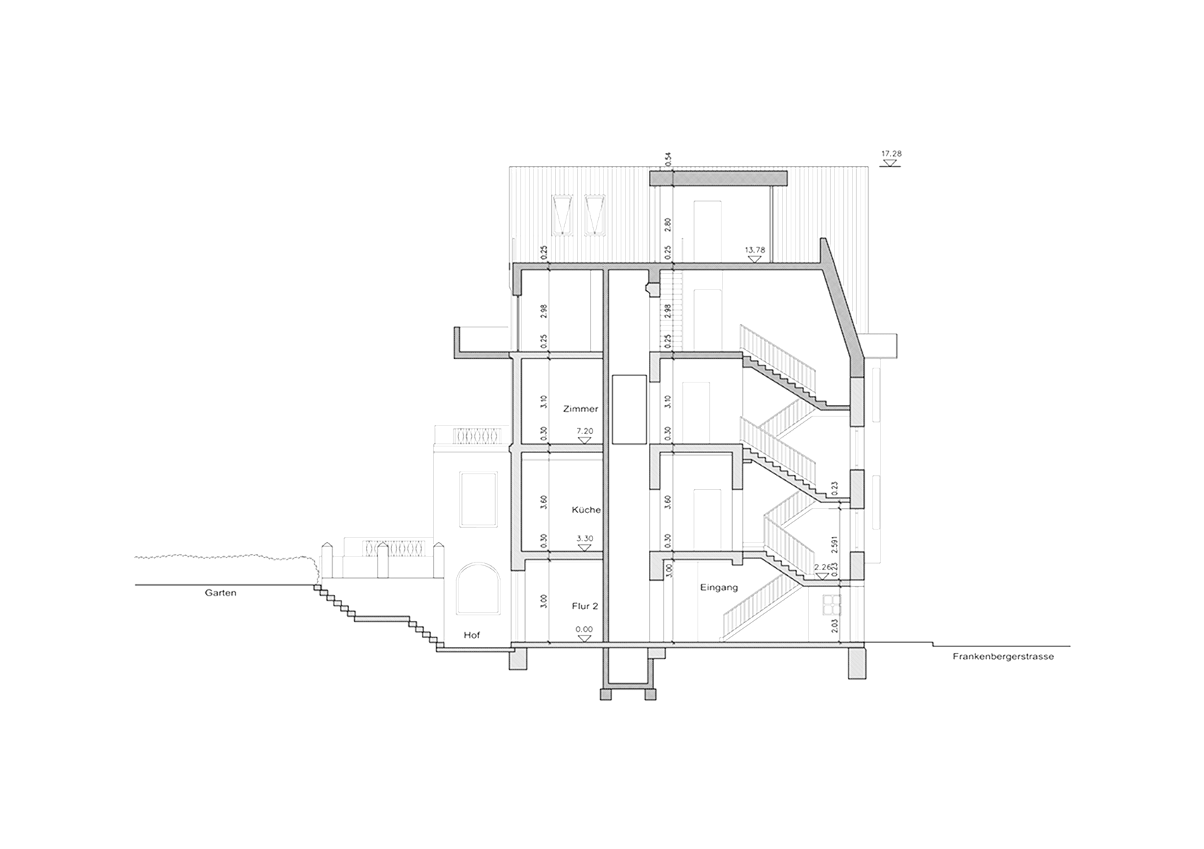
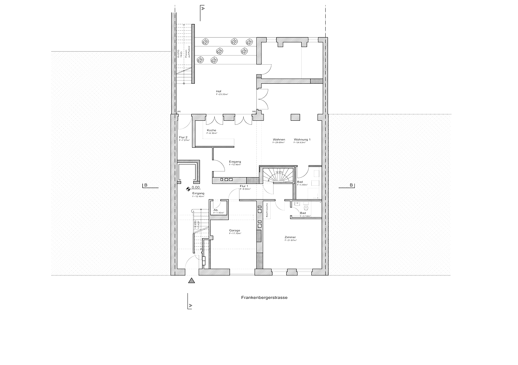
Modernisierung Wohnhaus Frankenberger Straße, Aachen
Die Villa aus dem frühen 19. Jh. liegt im Frankenbergerviertel von Aachen. Nach dem Verkauf bedarf diese einen Umbau, um den Anforderungen der neuen Eigentümer gerecht zu werden, aber auch um räumlich-funktional und energetisch aufgewertet werden zu können.
Auf den vier Geschossen des Hauses sollen vier großzügige Wohnungen entstehen. Zudem soll das Dach ausgebaut werden und zur Wohnung des dritten Geschosses dazugeschlagen werden. Der Einbau eines Aufzuges soll die Erreichbarkeit aller Wohnungen verbessern.
Alle Geschosse erfahren eine räumlich-funktionale Neuorganisierung, um den heutigen Bedürfnissen einer Familie gerecht werden zu können.
Die dazugehörigen Außenräume werden auf vielfältiger Weise neugestaltet. Es entstehen Gartenräume, Innenhof, Loggia, Balkone und Dachterrasse.







