Erweiterung Kita Reutershagweg, Aachen
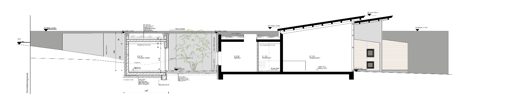
Die Kita Reutershagweg wurde in den 90er Jahren des letzten Jahrhunderts vom Architekturbüro HKS konzipiert und gebaut. Sie bildet mit dem nördlich liegenden Gebäude der evangelischen Kirchengemeinde ein Ensemble. Die Kita ruht halb in die Erde gegraben zu Füßen des Kirchenbaues. Die Kita selbst ist als 4 gruppige Kindertagesstätte mit großem Spielflur konzipiert, jedoch wurde in den letzten Jahren nur drei Gruppen mit Kinder belegt. Die vierte Gruppe wurde umfunktioniert zu Therapieräumen. Im Zuge der Anpassung von Kitas an unter 3 jährige Kinder bekam Kaiser Schweitzer Architekten den Auftrag die Kita zu erweitern, umzubauen und zu sanieren.
Das neue Konzept sieht vor wieder vier Gruppen zur Verfügung zu stellen, Abstellräume in Wickelbereiche um zu verwandeln und einen kleinen Abbau als Ausgleich für die andere Nebenräume zu schaffen. Zusätzlich wurden im Rahmen der Baumaßnahme die Außenanlagen erweitert und saniert.







