Modernisierung Bürogebäude Borchersstraße, Aachen
Die Irene und Peter Ludwig Stiftung modernisiert gemeinsam mit dem Hauptmieter, der IVU Traffic Technologies AG, das Bürogebäude in der Borchersstraße 20. Der Gebäudekomplex aus dem Jahr 1983 wird in mehreren Abschnitten saniert – im laufenden Betrieb und mit besonderer Rücksichtnahme auf die bestehenden Nutzungen.
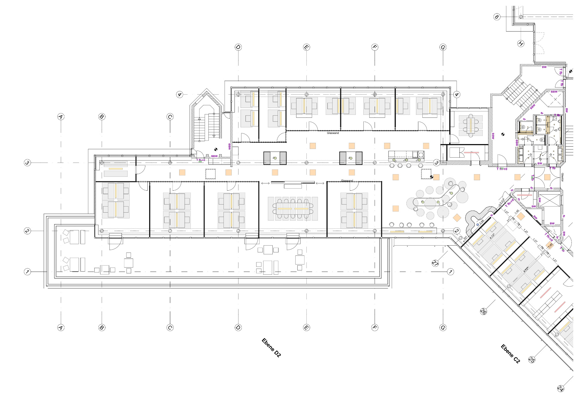
Ein zentraler Bestandteil der Maßnahme ist die Aufwertung der bislang dunklen Flure: Durch neue Glastrennwände entstehen helle, transparente Verbindungen zwischen den einzelnen Bereichen. Neue Gemeinschaftsküchen sowie Sozial- und Produkttesträume schaffen zusätzliche Aufenthalts- und Arbeitszonen, die zeitgemäßen Ansprüchen an eine moderne Arbeitswelt gerecht werden.
Zudem werden sämtliche Mietflächen mit einem neuen Teppichboden ausgestattet. Die technische Gebäudeausrüstung wird umfassend erneuert, ebenso der vorbeugende Brandschutz, der durch neue Türanlagen im gesamten Gebäude auf den aktuellen Stand gebracht wird. Auch das Foyer erhält ein neues, einladendes Erscheinungsbild.
Mit dieser Sanierung investiert die Stiftung in die langfristige Qualität des Standorts und schafft ein zukunftsfähiges Umfeld für Mieter und Mitarbeitende.








